Met een eigen account kun je panden volgen, opslaan als favoriet, je zoekprofiel opslaan en jouw eigen notities bij een huis maken.
Algemeen
Wat meteen opvalt aan de voorzijde van It Ferset 45 is de ruime ligging. Deze keurige vrijstaande notariswoning uit 2016 ligt aan een groot plantsoen met leuke speelgelegenheden voor de kinderen. Er wordt bovendien een ontsluiting gerealiseerd naar de Melkvaart, waardoor je straks met je achtertuin van 50 meter diepte direct aan open vaarwater ligt. Inclusief een kade van maar liefst 23 meter.... Meer informatie
-
Kenmerken
Alle kenmerken Type object Woonhuis, villa, vrijstaande woning Bouwperiode 2016 Status Verkocht onder voorbehoud Aangeboden sinds Dinsdag 18 november 2025 -
Locatie
Kenmerken
| Overdracht | |
|---|---|
| Referentienummer | 00331 |
| Vraagprijs | € 899.500,- k.k. |
| Status | Verkocht onder voorbehoud |
| Aanvaarding | In overleg |
| Aangeboden sinds | Dinsdag 18 november 2025 |
| Laatste wijziging | Zondag 7 december 2025 |
| Bouw | |
|---|---|
| Type object | Woonhuis, villa, vrijstaande woning |
| Soort bouw | Bestaande bouw |
| Bouwperiode | 2016 |
| Dakbedekking | Bitumen, Dakpannen |
| Type dak | Samengesteld |
| Keurmerken | Energie prestatie advies |
| Isolatievormen | Dakisolatie, Dubbel glas, HR-glas, Muurisolatie, Vloerisolatie, Volledig geïsoleerd |
| Oppervlaktes en inhoud | |
|---|---|
| Perceeloppervlakte | 1.460 m² |
| Woonoppervlakte | 247 m² |
| Woonkameroppervlakte | 65,53 m² |
| Keukenoppervlakte | 36,9 m² |
| Inhoud | 915 m³ |
| Oppervlakte externe bergruimte | 23 m² |
| Oppervlakte gebouwgebonden buitenruimte | 29 m² |
| Indeling | |
|---|---|
| Aantal bouwlagen | 3 |
| Aantal kamers | 7 (waarvan 6 slaapkamers) |
| Aantal badkamers | 2 (en 1 apart toilet) |
| Locatie | |
|---|---|
| Ligging | Aan vaarwater, Dichtbij openbaar vervoer, In woonwijk, Nabij school, Open ligging, Vrij uitzicht |
| Tuin | |
|---|---|
| Type | Voortuin |
| Oriëntering | Noorden |
| Staat | Prachtig aangelegd |
| Tuin 2 - Type | Achtertuin |
| Tuin 2 - Hoofdtuin | Ja |
| Tuin 2 - Oriëntering | Zuiden |
| Tuin 2 - Staat | Prachtig aangelegd |
| Energieverbruik | |
|---|---|
| Energielabel | A+ |
| CV ketel | |
|---|---|
| CV ketel | Intergas CW6 Prestige A |
| Warmtebron | Gas |
| Bouwjaar | 2016 |
| Combiketel | Ja |
| Eigendom | Eigendom |
| Uitrusting | |
|---|---|
| Aantal parkeerplaatsen | 4 |
| Warm water | CV-ketel, Elektrische boiler |
| Verwarmingssysteem | Centrale verwarming, Houtkachel, Vloerverwarming (gedeeltelijk), Warmterecuperatiesysteem |
| Ventilatie methode | Balansventilatie |
| Keukenvoorzieningen | Inbouwapparatuur, Kookeiland |
| Badkamervoorzieningen Badkamer 1 | Dubbele wastafel, Inloopdouche, Vloerverwarming |
| Badkamervoorzieningen Badkamer 2 | Inloopdouche, Ligbad, Wastafelmeubel |
| Heeft kabel-tv | Ja |
| Tuin aanwezig | Ja |
| Beschikt over een internetverbinding | Ja |
| Heeft schuur/berging | Ja |
| Heeft een dakraam | Ja |
| Heeft zonwering | Ja |
| Heeft zonnepanelen | Ja |
| Kadastrale gegevens | |
|---|---|
| Kadastrale aanduiding | Makkum F 781 |
| Perceeloppervlakte | 1.460 m² |
| Omvang | Geheel perceel |
| Eigendomsituatie | Eigen grond |
Beschrijving
Wat meteen opvalt aan de voorzijde van It Ferset 45 is de ruime ligging. Deze keurige vrijstaande notariswoning uit 2016 ligt aan een groot plantsoen met leuke speelgelegenheden voor de kinderen. Er wordt bovendien een ontsluiting gerealiseerd naar de Melkvaart, waardoor je straks met je achtertuin van 50 meter diepte direct aan open vaarwater ligt. Inclusief een kade van maar liefst 23 meter.
De woning heeft een zogenoemde risaliet. Dat is een gedeelte van de voorgevel dat over de volle hoogte naar voren springt. Hierdoor bevindt zich in het hart van de woning een royale hal met een prachtige vide. Een van de belangrijkste kenmerken van deze woning is dan ook de ruimte en de luxe. Dat smaakt direct naar meer.
Via de fraai aangelegde voortuin, met twee parkeerplaatsen, bereik je de entree van de woning. De L-vormige woonkamer heeft een visgraatvloer, een houtkachel en vloerverwarming over de gehele begane grond. Er zijn maar liefst drie openslaande deuren naar de tuin. En die tuin mag er zijn! 50 meter diep en 23 meter breed. In totaal maar liefst 1.460 m² eigen grond. Met een prachtig ruim uitzicht. Verder is er een nieuwe veranda, een terras en een vrijstaande, geïsoleerde berging. Natuurlijk kun je ook achterom.
De moderne, luxe halfopen woonkeuken is voorzien van diverse inbouwapparatuur. Daarnaast is er een bijkeuken met een aansluiting voor de wasmachine.
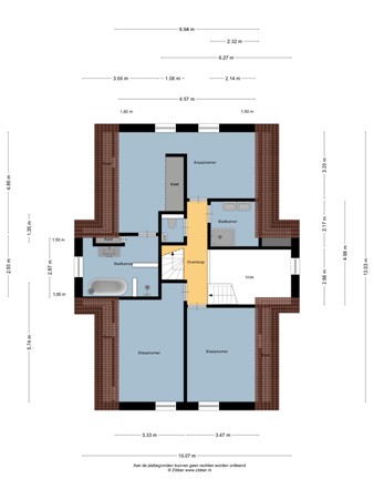
Op de eerste verdieping vind je een royale overloop met toegang tot de badkamer, voorzien van een inloopdouche, dubbele wastafel en vloerverwarming. Er zijn drie slaapkamers, waarvan één met een kleedkamer en een tweede badkamer met ligbad, inloopdouche, wastafelmeubel en ook vloerverwarming.
Via een vaste trap bereik je de tweede verdieping, met nog eens twee slaapkamers, de cv-installatie en een warmte-terugwin-systeem.
Alle kozijnen, boeidelen en wandbekledingen zijn van kunststof, dus onderhoudsarm. Dankzij de uitstekende isolatie en de 37 zonnepanelen beschikt de woning over energielabel A+.
Je rijdt vanuit de wijk zo richting de A7. Binnen een uur ben je in Amsterdam, Groningen of Zwolle. Makkum is een gezellig watersportdorp met alle voorzieningen aanwezig. Inclusief een mooi strand en een gezellige boulevard. Krijg je al zin om hier te wonen? Maak dan snel een afspraak voor een bezichtiging. Tot dan!
LET OP! De vraagprijs is een vanafprijs.
Exoneratiebeding
De informatie is met grote zorgvuldigheid samengesteld. Desondanks aanvaardt de verkoper noch Hilbert Makelaardij enige aansprakelijkheid voor de onjuistheid van gegevens. De koper kan aan de inhoud van de vermelde informatie geen enkel recht ontlenen. Hij dient zelf onderzoek te plegen naar alle aspecten van de woning die voor hem van belang zijn.
De woning heeft een zogenoemde risaliet. Dat is een gedeelte van de voorgevel dat over de volle hoogte naar voren springt. Hierdoor bevindt zich in het hart van de woning een royale hal met een prachtige vide. Een van de belangrijkste kenmerken van deze woning is dan ook de ruimte en de luxe. Dat smaakt direct naar meer.
Via de fraai aangelegde voortuin, met twee parkeerplaatsen, bereik je de entree van de woning. De L-vormige woonkamer heeft een visgraatvloer, een houtkachel en vloerverwarming over de gehele begane grond. Er zijn maar liefst drie openslaande deuren naar de tuin. En die tuin mag er zijn! 50 meter diep en 23 meter breed. In totaal maar liefst 1.460 m² eigen grond. Met een prachtig ruim uitzicht. Verder is er een nieuwe veranda, een terras en een vrijstaande, geïsoleerde berging. Natuurlijk kun je ook achterom.
De moderne, luxe halfopen woonkeuken is voorzien van diverse inbouwapparatuur. Daarnaast is er een bijkeuken met een aansluiting voor de wasmachine.
Op de eerste verdieping vind je een royale overloop met toegang tot de badkamer, voorzien van een inloopdouche, dubbele wastafel en vloerverwarming. Er zijn drie slaapkamers, waarvan één met een kleedkamer en een tweede badkamer met ligbad, inloopdouche, wastafelmeubel en ook vloerverwarming.
Via een vaste trap bereik je de tweede verdieping, met nog eens twee slaapkamers, de cv-installatie en een warmte-terugwin-systeem.
Alle kozijnen, boeidelen en wandbekledingen zijn van kunststof, dus onderhoudsarm. Dankzij de uitstekende isolatie en de 37 zonnepanelen beschikt de woning over energielabel A+.
Je rijdt vanuit de wijk zo richting de A7. Binnen een uur ben je in Amsterdam, Groningen of Zwolle. Makkum is een gezellig watersportdorp met alle voorzieningen aanwezig. Inclusief een mooi strand en een gezellige boulevard. Krijg je al zin om hier te wonen? Maak dan snel een afspraak voor een bezichtiging. Tot dan!
LET OP! De vraagprijs is een vanafprijs.
Exoneratiebeding
De informatie is met grote zorgvuldigheid samengesteld. Desondanks aanvaardt de verkoper noch Hilbert Makelaardij enige aansprakelijkheid voor de onjuistheid van gegevens. De koper kan aan de inhoud van de vermelde informatie geen enkel recht ontlenen. Hij dient zelf onderzoek te plegen naar alle aspecten van de woning die voor hem van belang zijn.