Met een eigen account kun je panden volgen, opslaan als favoriet, je zoekprofiel opslaan en jouw eigen notities bij een huis maken.
Algemeen
Deze prachtige vrijstaande jarendertigwoning heeft nog zijn authentieke karakter en sfeer. De woning heeft een woonoppervlakte van maar liefs 165 m2. Door de gebroken kaplijn biedt de woning ook boven verrassend veel ruimte. Met een slaapkamer en badkamer met toilet beneden is de woning bovendien levensloopbestendig. De woning is ook geschikt voor een praktijk aan huis.
Via de ruime voortu... Meer informatie
Via de ruime voortu... Meer informatie
-
Kenmerken
Alle kenmerken Type object Woonhuis, eengezinswoning, vrijstaande woning Bouwperiode 1935 Status Nieuw in verkoop Aangeboden sinds Donderdag 12 februari 2026 -
Locatie
Kenmerken
| Overdracht | |
|---|---|
| Referentienummer | 00342 |
| Vraagprijs | € 560.000,- k.k. |
| Status | Nieuw in verkoop |
| Aanvaarding | In overleg |
| Aangeboden sinds | Donderdag 12 februari 2026 |
| Bouw | |
|---|---|
| Type object | Woonhuis, eengezinswoning, vrijstaande woning |
| Soort bouw | Bestaande bouw |
| Toegankelijkheid | Mindervaliden, Senioren |
| Bouwperiode | 1935 |
| Dakbedekking | Dakpannen |
| Type dak | Mansardedak |
| Keurmerken | Energie prestatie advies |
| Isolatievormen | Gedeeltelijk dubbel glas |
| Oppervlaktes en inhoud | |
|---|---|
| Perceeloppervlakte | 630 m² |
| Woonoppervlakte | 144 m² |
| Woonkameroppervlakte | 36,66 m² |
| Keukenoppervlakte | 10,18 m² |
| Inhoud | 644 m³ |
| Oppervlakte overige inpandige ruimten | 30 m² |
| Oppervlakte externe bergruimte | 48 m² |
| Oppervlakte gebouwgebonden buitenruimte | 1 m² |
| Indeling | |
|---|---|
| Aantal bouwlagen | 3 (en 1 kelder) |
| Aantal kamers | 7 (waarvan 6 slaapkamers) |
| Aantal badkamers | 1 (en 1 apart toilet) |
| Locatie | |
|---|---|
| Ligging | Beschutte ligging, Dichtbij openbaar vervoer, In woonwijk, Nabij school |
| Tuin | |
|---|---|
| Type | Voortuin |
| Oriëntering | Noorden |
| Staat | Goed onderhouden |
| Tuin 2 - Type | Achtertuin |
| Tuin 2 - Hoofdtuin | Ja |
| Tuin 2 - Oriëntering | Zuiden |
| Tuin 2 - Heeft een achterom | Ja |
| Tuin 2 - Staat | Goed onderhouden |
| Energieverbruik | |
|---|---|
| Energielabel | F |
| CV ketel | |
|---|---|
| CV ketel | Nefit |
| Warmtebron | Gas |
| Bouwjaar | 2023 |
| Combiketel | Ja |
| Eigendom | Eigendom |
| Uitrusting | |
|---|---|
| Aantal parkeerplaatsen | 6 |
| Aantal overdekte parkeerplaatsen | 2 |
| Warm water | CV-ketel |
| Verwarmingssysteem | Centrale verwarming, Open haard |
| Ventilatie methode | Natuurlijke ventilatie |
| Badkamervoorzieningen | Douche, Ligbad, Toilet, Wastafel |
| Parkeergelegenheid | Vrijstaande stenen garage |
| Heeft kabel-tv | Ja |
| Heeft een open haard | Ja |
| Tuin aanwezig | Ja |
| Heeft een garage | Ja |
| Kadastrale gegevens | |
|---|---|
| Kadastrale aanduiding | Makkum A 4874 |
| Perceeloppervlakte | 85 m² |
| Omvang | Geheel perceel |
| Eigendomsituatie | Eigen grond |
| Kadastrale aanduiding | Makkum A 3792 |
| Perceeloppervlakte | 545 m² |
| Omvang | Geheel perceel |
| Eigendomsituatie | Eigen grond |
Beschrijving
Deze prachtige vrijstaande jarendertigwoning heeft nog zijn authentieke karakter en sfeer. De woning heeft een woonoppervlakte van maar liefs 165 m2. Door de gebroken kaplijn biedt de woning ook boven verrassend veel ruimte. Met een slaapkamer en badkamer met toilet beneden is de woning bovendien levensloopbestendig. De woning is ook geschikt voor een praktijk aan huis.
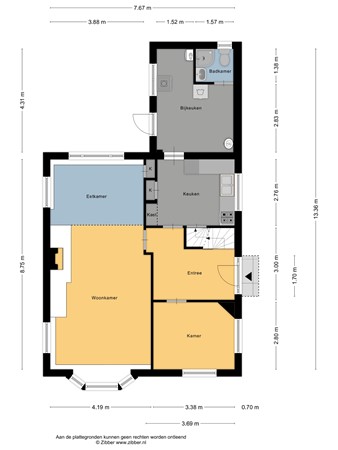
Via de ruime voortuin en een 30 meter lange oprit naar de grote dubbele garage kom je bij de hoofdentree van de woning. De ruime hal met granieten vloer biedt toegang tot de slaapkamer op de begane grond (die – misschien leuk om te weten - lang geleden heeft dienstgedaan als bijkantoortje van de Boerenleenbank). De royale woonkamer (voorheen en suite) heeft een erker, een glas-in-looddeur, een massief houten parketvloer en een hoog balkenplafond.
De dichte keuken met apparatuur heeft mooie paneeldeuren en een handige kelder. In de bijkeuken met wasmachineaansluiting staat een nieuwe NEFIT cv-ketel (2024). De bijkeuken, die ook een achteruitgang naar de tuin heeft, geeft toegang tot de badkamer, met een doucheruimte, een wastafel en een toilet.
De ruime achtertuin met zijtuin ligt heerlijk op het zuiden, maar biedt bovendien bijna de hele dag zon op een van de terrassen. In totaal heb je 630 m² eigen grond. Vanuit de tuin zie je de Franse invloed terug in de prachtige mansardekap, vernoemd naar de Franse architect François Mansart en in de dakpan, genaamd Tuile du Nord.
Verder is er een ruime dubbele garage met elektrische deur en een vliering. Deze is ook geschikt te maken voor een praktijk aan huis.
Op de verdieping zijn nu vier, en voorheen vijf, slaapkamers. Deze zijn eventueel te splitsen of samen te voegen. Aan de zijkant van de woning is een lange dakkapel geplaatst. De (tweede) badkamer op de verdieping heeft een ligbad, een douche, een wastafel en een tweede toilet.
Via de vlizotrap kom je op een ruime zolder die heel veel bergruimte biedt, maar waar ook nog een kamer mogelijk is.
Voor een volledige modernisering van de woning moet je nog wel de mouwen even opstropen, maar dan heb je ook wat. Een hele mooie, grote en karakteristieke vrijstaande woning. Met een prachtige tuin en een ruime dubbele garage.
Krijg je er al zin in? Maak dan snel een afspraak voor een bezichtiging. Tot dan!
Exoneratiebeding
De informatie is met grote zorgvuldigheid samengesteld. Desondanks aanvaardt de verkoper noch Hilbert Makelaardij enige aansprakelijkheid voor de onjuistheid van gegevens. De koper kan aan de inhoud van de vermelde informatie geen enkel recht ontlenen. Hij dient zelf onderzoek te plegen naar alle aspecten van de woning die voor hem van belang zijn.
Via de ruime voortuin en een 30 meter lange oprit naar de grote dubbele garage kom je bij de hoofdentree van de woning. De ruime hal met granieten vloer biedt toegang tot de slaapkamer op de begane grond (die – misschien leuk om te weten - lang geleden heeft dienstgedaan als bijkantoortje van de Boerenleenbank). De royale woonkamer (voorheen en suite) heeft een erker, een glas-in-looddeur, een massief houten parketvloer en een hoog balkenplafond.
De dichte keuken met apparatuur heeft mooie paneeldeuren en een handige kelder. In de bijkeuken met wasmachineaansluiting staat een nieuwe NEFIT cv-ketel (2024). De bijkeuken, die ook een achteruitgang naar de tuin heeft, geeft toegang tot de badkamer, met een doucheruimte, een wastafel en een toilet.
De ruime achtertuin met zijtuin ligt heerlijk op het zuiden, maar biedt bovendien bijna de hele dag zon op een van de terrassen. In totaal heb je 630 m² eigen grond. Vanuit de tuin zie je de Franse invloed terug in de prachtige mansardekap, vernoemd naar de Franse architect François Mansart en in de dakpan, genaamd Tuile du Nord.
Verder is er een ruime dubbele garage met elektrische deur en een vliering. Deze is ook geschikt te maken voor een praktijk aan huis.
Op de verdieping zijn nu vier, en voorheen vijf, slaapkamers. Deze zijn eventueel te splitsen of samen te voegen. Aan de zijkant van de woning is een lange dakkapel geplaatst. De (tweede) badkamer op de verdieping heeft een ligbad, een douche, een wastafel en een tweede toilet.
Via de vlizotrap kom je op een ruime zolder die heel veel bergruimte biedt, maar waar ook nog een kamer mogelijk is.
Voor een volledige modernisering van de woning moet je nog wel de mouwen even opstropen, maar dan heb je ook wat. Een hele mooie, grote en karakteristieke vrijstaande woning. Met een prachtige tuin en een ruime dubbele garage.
Krijg je er al zin in? Maak dan snel een afspraak voor een bezichtiging. Tot dan!
Exoneratiebeding
De informatie is met grote zorgvuldigheid samengesteld. Desondanks aanvaardt de verkoper noch Hilbert Makelaardij enige aansprakelijkheid voor de onjuistheid van gegevens. De koper kan aan de inhoud van de vermelde informatie geen enkel recht ontlenen. Hij dient zelf onderzoek te plegen naar alle aspecten van de woning die voor hem van belang zijn.