Met een eigen account kun je panden volgen, opslaan als favoriet, je zoekprofiel opslaan en jouw eigen notities bij een huis maken.
Algemeen
Laat maar komen, die zomer! Wat een fantastisch vrij uitzicht heb je hier, zo over het IJsselmeer. Dit topappartement in Zuiderzee State bevindt zich op de derde etage en is bereikbaar met een lift. Het terras ligt op het zuiden, waardoor je heerlijk veel zon hebt. Dankzij de dichte muur geniet je van extra beschutting en privacy.
Via de hal met toilet kom je in de lichte woonkamer met een... Meer informatie
Via de hal met toilet kom je in de lichte woonkamer met een... Meer informatie
-
Kenmerken
Alle kenmerken Type object Appartement, galerijflat Bouwperiode 1994 Status Verkocht Aangeboden sinds Vrijdag 28 februari 2025 -
Locatie
Kenmerken
| Overdracht | |
|---|---|
| Referentienummer | 00173 |
| Vraagprijs | € 250.000,- k.k. |
| Inrichting | Optioneel |
| Status | Verkocht |
| Aanvaarding | Direct |
| Aangeboden sinds | Vrijdag 28 februari 2025 |
| Laatste wijziging | Woensdag 19 november 2025 |
| Bouw | |
|---|---|
| Type object | Appartement, galerijflat |
| Woonlaag | 4e woonlaag |
| Soort bouw | Bestaande bouw |
| Bouwperiode | 1994 |
| Dakbedekking | Bitumen |
| Type dak | Platdak |
| Keurmerken | Energie prestatie advies |
| Isolatievormen | Dakisolatie, Dubbel glas, Muurisolatie, Vloerisolatie, Volledig geïsoleerd |
| Oppervlaktes en inhoud | |
|---|---|
| Woonoppervlakte | 60 m² |
| Woonkameroppervlakte | 26,56 m² |
| Keukenoppervlakte | 3,58 m² |
| Inhoud | 162 m³ |
| Indeling | |
|---|---|
| Aantal bouwlagen | 1 |
| Aantal kamers | 3 (waarvan 2 slaapkamers) |
| Aantal badkamers | 1 (en 1 apart toilet) |
| Locatie | |
|---|---|
| Ligging | Aan vaarwater, Dichtbij openbaar vervoer, Open ligging, Vrij uitzicht |
| Energieverbruik | |
|---|---|
| Energielabel | A |
| CV ketel | |
|---|---|
| CV ketel | Intergas |
| Warmtebron | Gas |
| Bouwjaar | 2013 |
| Combiketel | Ja |
| Eigendom | Eigendom |
| Uitrusting | |
|---|---|
| Aantal parkeerplaatsen | 1 |
| Warm water | CV-ketel |
| Verwarmingssysteem | Centrale verwarming |
| Ventilatie methode | Mechanische ventilatie |
| Parkeergelegenheid | Parkeerplaats |
| Heeft kabel-tv | Ja |
| Heeft een lift | Ja |
| Beschikt over een internetverbinding | Ja |
| Heeft schuur/berging | Ja |
| Heeft een schuifpui | Ja |
| Heeft ventilatie | Ja |
| Vereniging van Eigenaren | |
|---|---|
| Ingeschreven bij de KvK | Ja |
| Jaarlijkse vergadering | Ja |
| Periodieke bijdrage | Ja |
| Reservefonds | Ja |
| Meer jaren onderhoudsplan | Ja |
| Opstal verzekering | Ja |
| Kadastrale gegevens | |
|---|---|
| Kadastrale aanduiding | Makkum D 465 |
| Omvang | Appartementsrecht of complex |
| Eigendomsituatie | Eigen grond |
| Indexnummer | 45 |
Beschrijving
Laat maar komen, die zomer! Wat een fantastisch vrij uitzicht heb je hier, zo over het IJsselmeer. Dit topappartement in Zuiderzee State bevindt zich op de derde etage en is bereikbaar met een lift. Het terras ligt op het zuiden, waardoor je heerlijk veel zon hebt. Dankzij de dichte muur geniet je van extra beschutting en privacy.
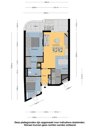
Via de hal met toilet kom je in de lichte woonkamer met een schuifpui naar het terras. Er zijn twee slaapkamers, waarvan één met zeezicht. De badkamer is voorzien van een ligbad, douche en wastafelmeubel. Daarnaast is er een aparte ruimte met een tweede toilet en een extra wastafel. De halfopen keuken is uitgerust met diverse inbouwapparatuur.
Verder beschikt het appartement over een eigen afgesloten parkeerplek en berging.
Beach Resort Makkum heeft een gezellige boulevard met leuke winkels en sfeervolle terrassen. De perfect plek om lekker te eten en volledig tot rust te komen. Krijg je al zin om hier je vakanties door te brengen? Maak snel een afspraak voor een bezichtiging. Tot dan!
Servicekosten € 160 p/m
Beheerskosten € 90,66 p/m
Exoneratiebeding
De informatie is met grote zorgvuldigheid samengesteld. Desondanks aanvaardt de verkoper noch Hilbert Makelaardij enige aansprakelijkheid voor de onjuistheid van gegevens. De koper kan aan de inhoud van de vermelde informatie geen enkel recht ontlenen. Hij dient zelf onderzoek te plegen naar alle aspecten van de woning die voor hem van belang zijn.
Via de hal met toilet kom je in de lichte woonkamer met een schuifpui naar het terras. Er zijn twee slaapkamers, waarvan één met zeezicht. De badkamer is voorzien van een ligbad, douche en wastafelmeubel. Daarnaast is er een aparte ruimte met een tweede toilet en een extra wastafel. De halfopen keuken is uitgerust met diverse inbouwapparatuur.
Verder beschikt het appartement over een eigen afgesloten parkeerplek en berging.
Beach Resort Makkum heeft een gezellige boulevard met leuke winkels en sfeervolle terrassen. De perfect plek om lekker te eten en volledig tot rust te komen. Krijg je al zin om hier je vakanties door te brengen? Maak snel een afspraak voor een bezichtiging. Tot dan!
Servicekosten € 160 p/m
Beheerskosten € 90,66 p/m
Exoneratiebeding
De informatie is met grote zorgvuldigheid samengesteld. Desondanks aanvaardt de verkoper noch Hilbert Makelaardij enige aansprakelijkheid voor de onjuistheid van gegevens. De koper kan aan de inhoud van de vermelde informatie geen enkel recht ontlenen. Hij dient zelf onderzoek te plegen naar alle aspecten van de woning die voor hem van belang zijn.