Met een eigen account kun je panden volgen, opslaan als favoriet, je zoekprofiel opslaan en jouw eigen notities bij een huis maken.
Algemeen
Midden in het gezellige dorpscentrum van Makkum komen de Italiaanse en Franse architectuur samen in de voor- en achtergevel van deze woning uit 1750. Die nog altijd de authentieke sfeer ademt. Dat zie je meteen al bij de entree van de woning, met de prachtige voordeur en de historische kelder.
De sfeervolle woonkamer heeft een hoog balkenplafond en een opstap naar de woonkeuken. Die maar lie... Meer informatie
De sfeervolle woonkamer heeft een hoog balkenplafond en een opstap naar de woonkeuken. Die maar lie... Meer informatie
-
Kenmerken
Alle kenmerken Type object Woonhuis, eengezinswoning, tussenwoning Bouwperiode 1750 Status Nieuw in verkoop Aangeboden sinds Donderdag 13 november 2025 -
Locatie
Kenmerken
| Overdracht | |
|---|---|
| Referentienummer | 00329 |
| Vraagprijs | € 300.000,- k.k. |
| Status | Nieuw in verkoop |
| Aanvaarding | In overleg |
| Aangeboden sinds | Donderdag 13 november 2025 |
| Bouw | |
|---|---|
| Type object | Woonhuis, eengezinswoning, tussenwoning |
| Soort bouw | Bestaande bouw |
| Bouwperiode | 1750 |
| Dakbedekking | Bitumen, Dakpannen |
| Type dak | Mansardedak |
| Keurmerken | Energie prestatie advies |
| Isolatievormen | Dakisolatie, Gedeeltelijk dubbel glas, Muurisolatie |
| Oppervlaktes en inhoud | |
|---|---|
| Perceeloppervlakte | 124 m² |
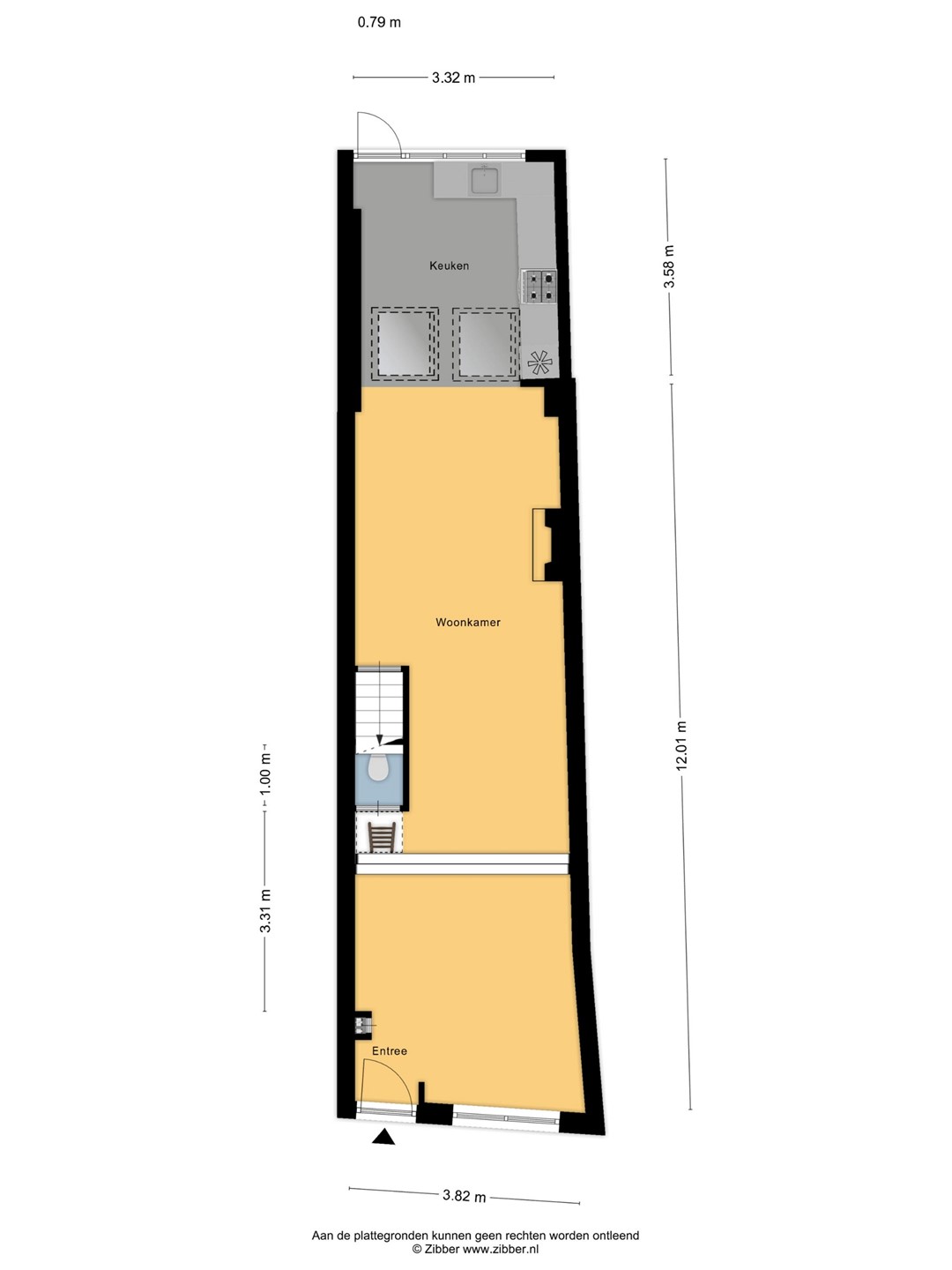
| Woonoppervlakte | 90 m² |
| Woonkameroppervlakte | 45,88 m² |
| Keukenoppervlakte | 11,89 m² |
| Inhoud | 318 m³ |
| Indeling | |
|---|---|
| Aantal bouwlagen | 2 (en 1 kelder) |
| Aantal kamers | 3 (waarvan 2 slaapkamers) |
| Aantal badkamers | 1 (en 2 aparte toiletten) |
| Locatie | |
|---|---|
| Ligging | Beschutte ligging, Dichtbij openbaar vervoer, In centrum, Nabij school |
| Tuin | |
|---|---|
| Type | Achtertuin |
| Hoofdtuin | Ja |
| Oriëntering | Noorden |
| Staat | Goed onderhouden |
| Energieverbruik | |
|---|---|
| Energielabel | F |
| CV ketel | |
|---|---|
| CV ketel | Remeha Quinta |
| Warmtebron | Gas |
| Bouwjaar | 2005 |
| Combiketel | Ja |
| Eigendom | Eigendom |
| Uitrusting | |
|---|---|
| Warm water | CV-ketel |
| Verwarmingssysteem | Centrale verwarming |
| Keukenvoorzieningen | Inbouwapparatuur |
| Badkamervoorzieningen | Douche, Wastafelmeubel |
| Heeft kabel-tv | Ja |
| Heeft een rookkanaal | Ja |
| Tuin aanwezig | Ja |
| Beschikt over een internetverbinding | Ja |
| Heeft een dakraam | Ja |
| Kadastrale gegevens | |
|---|---|
| Kadastrale aanduiding | Makkum A 3508 |
| Perceeloppervlakte | 124 m² |
| Omvang | Geheel perceel |
| Eigendomsituatie | Eigen grond |
Beschrijving
Midden in het gezellige dorpscentrum van Makkum komen de Italiaanse en Franse architectuur samen in de voor- en achtergevel van deze woning uit 1750. Die nog altijd de authentieke sfeer ademt. Dat zie je meteen al bij de entree van de woning, met de prachtige voordeur en de historische kelder.
De sfeervolle woonkamer heeft een hoog balkenplafond en een opstap naar de woonkeuken. Die maar liefst 5 meter is uitgebouwd en voorzien is van lichtkoepels. In de 9 meter diepe achtertuin met overkapping kun je heerlijk van de zon genieten.
Op de verdieping kom je via de ruime overloop met kastruimte in de voor- en achterkamer. Verder vind je hier een tweede toilet en natuurlijk de badkamer met een douche en een wastafelmeubel.
Makkum is een idyllisch watersportdorp met de oude haven en de sluizen naar het IJsselmeer. Je vindt hier leuke winkels en gezellige terrassen. En het strand met de boulevard brengt je direct in vakantiesferen. Rust, ruimte en water!
Zie jij jezelf al wonen midden in dit gezellige dorpscentrum, in een sfeervolle, authentieke woning? Maak dan snel een afspraak. Leuk, tot dan!
Exoneratiebeding
De informatie is met grote zorgvuldigheid samengesteld. Desondanks aanvaardt de verkoper noch Hilbert Makelaardij enige aansprakelijkheid voor de onjuistheid van gegevens.
De koper kan aan de inhoud van de vermelde informatie geen enkel recht ontlenen. Hij dient zelf onderzoek te plegen naar alle aspecten van de woning die voor hem van belang zijn.
De sfeervolle woonkamer heeft een hoog balkenplafond en een opstap naar de woonkeuken. Die maar liefst 5 meter is uitgebouwd en voorzien is van lichtkoepels. In de 9 meter diepe achtertuin met overkapping kun je heerlijk van de zon genieten.
Op de verdieping kom je via de ruime overloop met kastruimte in de voor- en achterkamer. Verder vind je hier een tweede toilet en natuurlijk de badkamer met een douche en een wastafelmeubel.
Makkum is een idyllisch watersportdorp met de oude haven en de sluizen naar het IJsselmeer. Je vindt hier leuke winkels en gezellige terrassen. En het strand met de boulevard brengt je direct in vakantiesferen. Rust, ruimte en water!
Zie jij jezelf al wonen midden in dit gezellige dorpscentrum, in een sfeervolle, authentieke woning? Maak dan snel een afspraak. Leuk, tot dan!
Exoneratiebeding
De informatie is met grote zorgvuldigheid samengesteld. Desondanks aanvaardt de verkoper noch Hilbert Makelaardij enige aansprakelijkheid voor de onjuistheid van gegevens.
De koper kan aan de inhoud van de vermelde informatie geen enkel recht ontlenen. Hij dient zelf onderzoek te plegen naar alle aspecten van de woning die voor hem van belang zijn.