Beschrijving
Via de trekvaart in Workum vaar je de prachtige Friese wateren op, richting de verschillende meren. Ook kun je hier de Yskeburrefeart op. Wat je misschien niet zou vermoeden, is dat je gewoon in de achtertuin van Dwarsnoard 15 en 17 kunt aanleggen. Hoe leuk is dat!
De woning heeft een prachtige, diepe achtertuin van wel 38 meter en een breedte van ruim 12 meter door de samenvoeging van de twee percelen. In de tuin vind je een charmant buitenhuisje. De totale oppervlakte bedraagt 603 m² eigen grond, met een perceeldiepte van ruim 50 meter en een breedte van ruim 12 meter. Ook is er een achterom aanwezig.
Wat deze woning extra uniek maakt, is de grote schuur van 15 bij 5 meter met een enorme bergzolder. De schuur heeft zelfs een eigen adres, nummer 17. Dit biedt allerlei mogelijkheden: denk aan een meergezinswoning, B&B, praktijkruimte of een grote hobbyruimte. Vroeger stond hier de SRV-wagen: Samen Rationeel Verkopen.
Aan de voorzijde zie je dat het eigenlijk om twee vrijstaande gebouwen gaat. Je moet wel even de mouwen opstropen, maar dan kun je er echt iets bijzonders van maken.
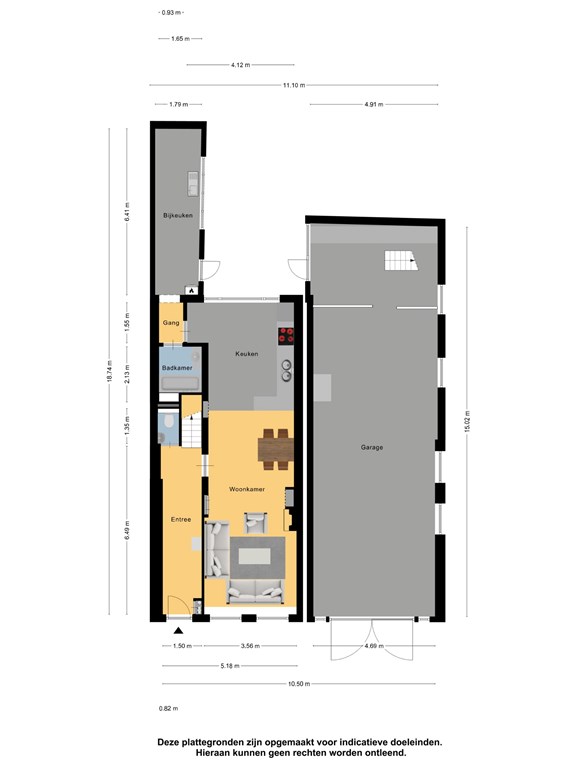
Via de ruime hal met toilet kom je in de doorzonwoonkamer met een open keuken, een massief eikenhouten vloer en een mogelijkheid voor een houtkachel. In de ruime aanbouw bevinden zich de bijkeuken en de badkamer met een ligbad, douche in bad en een wastafelmeubel.
Op de verdieping zijn vier slaapkamers. Met aan beide zijkanten van de woning een dakkapel.
Workum is één van de Friese elf steden en staat bekend als een idyllisch plaatsje met een rijke historie, leuke winkeltjes en gezellige terrassen. Alle voorzieningen zijn er aanwezig.
Zie jij jezelf al wonen in deze bijzondere woning met een grote schuur en een diepe tuin aan open vaarwater? Maak dan snel een afspraak voor het Start Open Huis op woensdag 13 november. Tot dan!
Exoneratiebeding
De informatie is met grote zorgvuldigheid samengesteld. Desondanks aanvaardt de verkoper noch Hilbert Makelaardij enige aansprakelijkheid voor de onjuistheid van gegevens. De koper kan aan de inhoud van de vermelde informatie geen enkel recht ontlenen. Hij dient zelf onderzoek te plegen naar alle aspecten van de woning die voor hem van belang zijn.
Plattegronden
165227981_1526129_dwars_begane_grond_first_design_20241108_a0f21f.jpg
165227981_1526129_dwars_eerste_verdiepi_first_design_20241108_a38df3.jpg
165227981_1526129_dwars_begane_grond_t_first_design_20241108_dc567f.jpg
165227981-266747129-se-117513131-1731106475809.png
165227981-266692835-se-117513131-1731106475809.png
165227981-266735930-se-117513131-1731106475809.png