Beschrijving

Net buiten het dorp ligt deze leuke twee-onder-een-kapwoning uit 1918. Met een prachtig uitzicht! Ook kun je volop genieten van de ruime tuin van 20 meter diep op het zuiden. De woning ligt bovendien onder de rook van Sneek. In 15 minuten fietsen sta je in het centrum.

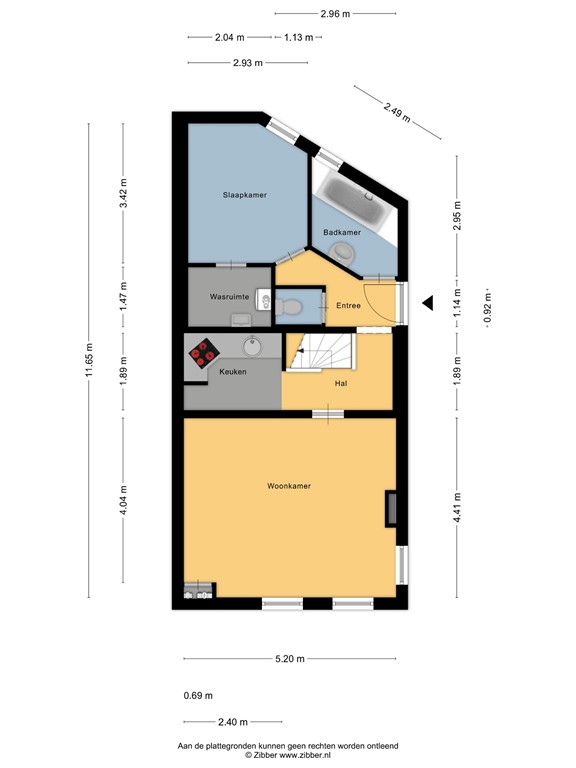
Via de hal met toilet kom je in de sfeervolle woonkamer met een mooie schouw, een hoog balkenplafond en een prachtig wijds uitzicht. De keuken is gesloten, maar die kun je bij de woonkamer betrekken. Op de begane grond is er ook een slaapkamer en een badkamer met een ligbad en een wastafelmeubel. Levensloopbestendig dus.

Via een sierlijke trap kom je op de verdieping, waar je ook weer een prachtig uitzicht hebt. Voorheen waren hier twee slaapkamers met een dakkapel.

Scharnegoutum is een dorp dat ontstaan is op een terp en aanvankelijk aan de Middelzee lag. Allerlei voorzieningen zijn hier aanwezig, zoals een supermarkt, een basisschool, sportverenigingen en gezondheidsdiensten. Het voordeel van de spoorweg is dat je weet dat er een zeer grote kans bestaat dat er achter je woning niet gebouwd gaat worden. En een paar seconden nadat de trein voorbij is gekomen, heb je weer een oase van rust. 

Wat een ontzettend leuke woning, hè? Er is al een start gemaakt met het opknappen van de woning, maar je moet nog wel even de handen uit de mouwen steken. Dan kun je er wel echt iets moois van maken. De artist impressions bij de foto’s en in de video geven je een goed beeld van hoe het zou kunnen worden. Gaan je handen al jeuken? Maak dan snel een afspraak voor het Start Open Huis op woensdag 1 april. Leuk, tot dan!

Exoneratiebeding
De informatie is met grote zorgvuldigheid samengesteld. Desondanks aanvaardt de verkoper noch
Hilbert Makelaardij enige aansprakelijkheid voor de onjuistheid van gegevens. De koper kan aan de inhoud van de vermelde informatie geen enkel recht ontlenen. Hij dient zelf onderzoek te plegen naar alle aspecten van de woning die voor hem van belang zijn.

Kenmerken