| Prijs | € 250.000,- k.k. |
| Type object | Appartement, bovenwoning |
| Woonoppervlakte | 122 m² |
| Aanvaarding | In overleg |
| Status | Verkocht |
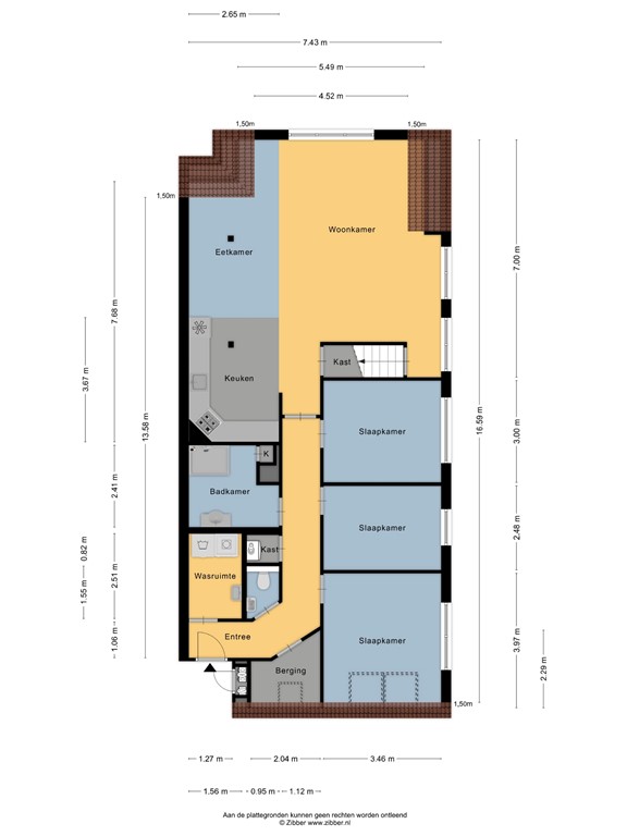
Een instapklare, ruime 5-kamer bovenwoning met berging, zolder en zonnig dakterras! Gelegen in het gezellige dorpscentrum van Makkum. Alle voorzieningen zijn aanwezig en op loopafstand bereikbaar. Het oorspronkelijke bouwjaar is 1920, maar in 2013 is het pand verbouwd tot vier appartementen. “It Nije Slopke”. Via de gezamenlijke hal kom je in je eigen hal met toilet. Deze geeft ook toegang tot de wasruimte en de inpandige berging. Vanuit de gang bereik je drie ruime slaapkamers. De badkamer is voorzien van vloerverwarming, een douche en een wastafelmeubel. De gezellige woonkamer heeft een vide en een open keuken met apparatuur en een trapkast. En als kers op de taart kom je via een vaste trap op de zolderkamer, met een deur naar het zonnige dakterras van ruim 7 m². Hier liggen ook de 10 zonnepanelen. Op de begane grond bevindt zich nog een extra berging. Nou, wat een leuke instapklare en ruime bovenwoning hè? Maak dan snel een afspraak voor het Start Open Huis op vrijdag 26 september. Tot dan! Exoneratiebeding De informatie is met grote zorgvuldigheid samengesteld. Desondanks aanvaardt de verkoper noch Hilbert Makelaardij enige aansprakelijkheid voor de onjuistheid van gegevens. De koper kan aan de inhoud van de vermelde informatie geen enkel recht ontlenen. Hij dient zelf onderzoek te plegen naar alle aspecten van de woning die voor hem van belang zijn.
| Referentienummer | 00312 |
| Vraagprijs | € 250.000,- k.k. |
| Status | Verkocht |
| Aanvaarding | In overleg |
| Aangeboden sinds | Donderdag 18 september 2025 |
| Laatste wijziging | Dinsdag 18 november 2025 |
| Type object | Appartement, bovenwoning |
| Woonlaag | 2e woonlaag |
| Soort bouw | Bestaande bouw |
| Bouwperiode | 2013 |
| Dakbedekking | Bitumen Dakpannen |
| Type dak | Zadeldak |
| Keurmerken | Energie prestatie advies |
| Isolatievormen | Dakisolatie Dubbel glas Muurisolatie Vloerisolatie Volledig geïsoleerd |
| Woonoppervlakte | 122 m² |
| Woonkameroppervlakte | 57,06 m² |
| Keukenoppervlakte | 10,2 m² |
| Inhoud | 403 m³ |
| Oppervlakte overige inpandige ruimten | 8 m² |
| Aantal bouwlagen | 3 |
| Aantal kamers | 5 (waarvan 4 slaapkamers) |
| Aantal badkamers | 1 (en 1 apart toilet) |
| Ligging | Beschutte ligging Dichtbij openbaar vervoer In centrum Nabij school |
| Energielabel | D |
| CV ketel | Nefit Topline |
| Warmtebron | Gas |
| Bouwjaar | 2013 |
| Combiketel | Ja |
| Eigendom | Eigendom |
| Warm water | CV-ketel |
| Verwarmingssysteem | Centrale verwarming Vloerverwarming (gedeeltelijk) |
| Ventilatie methode | Mechanische ventilatie |
| Badkamervoorzieningen | Douche Vloerverwarming Wastafel |
| Heeft kabel-tv | Ja |
| Heeft schuur/berging | Ja |
| Heeft zonnepanelen | Ja |
| Heeft ventilatie | Ja |
| Ingeschreven bij de KvK | Ja |
| Jaarlijkse vergadering | Ja |
| Periodieke bijdrage | Ja |
| Reservefonds | Ja |
| Meer jaren onderhoudsplan | Ja |
| Opstal verzekering | Ja |
| Kadastrale aanduiding | Makkum A 6804 |
| Perceeloppervlakte | 154 m² |
| Omvang | Appartementsrecht of complex |
| Eigendomsituatie | Eigen grond |
| Indexnummer | 2 |