Beschrijving
Midden in het gezellige dorpscentrum van Makkum komen de Italiaanse en Franse architectuur samen in de voor- en achtergevel van deze woning uit 1750. Die nog altijd de authentieke sfeer ademt. Dat zie je meteen al bij de entree van de woning, met de prachtige voordeur en de historische kelder.
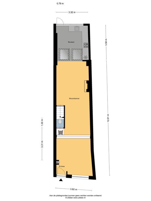
De sfeervolle woonkamer heeft een hoog balkenplafond en een opstap naar de woonkeuken. Die maar liefst 5 meter is uitgebouwd en voorzien is van lichtkoepels. In de 9 meter diepe achtertuin met overkapping kun je heerlijk van de zon genieten.
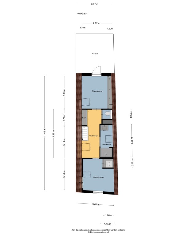
Op de verdieping kom je via de ruime overloop met kastruimte in de voor- en achterkamer. Verder vind je hier een tweede toilet en natuurlijk de badkamer met een douche en een wastafelmeubel.
Makkum is een idyllisch watersportdorp met de oude haven en de sluizen naar het IJsselmeer. Je vindt hier leuke winkels en gezellige terrassen. En het strand met de boulevard brengt je direct in vakantiesferen. Rust, ruimte en water!
Zie jij jezelf al wonen midden in dit gezellige dorpscentrum, in een sfeervolle, authentieke woning? Maak dan snel een afspraak voor het Start Open Huis op vrijdag 3 oktober. Leuk, tot dan!
Exoneratiebeding
De informatie is met grote zorgvuldigheid samengesteld. Desondanks aanvaardt de verkoper noch Hilbert Makelaardij enige aansprakelijkheid voor de onjuistheid van gegevens.
De koper kan aan de inhoud van de vermelde informatie geen enkel recht ontlenen. Hij dient zelf onderzoek te plegen naar alle aspecten van de woning die voor hem van belang zijn.
Plattegronden
176692243_1579015_markt_begane_grond_first_design_20250911_904a83.jpg
176692243_1579015_markt_eerste_verdiepi_first_design_20250911_c783db.jpg
176692243_1579015_markt_kelder_first_design_20250911_b7712e.jpg
176692243_1579015_markt_overkapping_first_design_20250911_88841d.jpg