Beschrijving
De Verzetsbrug aan de Grote Zijlroede vormt de verbinding met het idyllische dorpscentrum van Makkum en de Krommesloot, een doorvaart naar de prachtige Friese wateren. Op deze mooie locatie staat een karakteristieke woning uit 1881, eigenlijk vrijstaand. Er moet nog wel een ‘moderniseringsslag’ gemaakt worden, maar dan heb je wel een hele leuke en degelijke woning.
Via de entree met de ruime hal kom je in de gezellige L-vormige woonkamer. Vroeger heeft hier ook nog een bedstee gezeten. De keuken is doorgebroken, waardoor het een halfopen keuken is geworden met apparatuur. In de aanbouw bevindt zich nog een hal met een lichtkoepel en de badkamer met ligbad, douche en wastafel.
De achtertuin is maar liefst 18 meter diep en 6 meter breed, met een mooi, ruim uitzicht en veel privacy. De royale aangebouwde stenen schuur is verwarmd en voorzien van een wasmachineaansluiting. Er is een achterom, wat uniek is aan de Krommesloot.
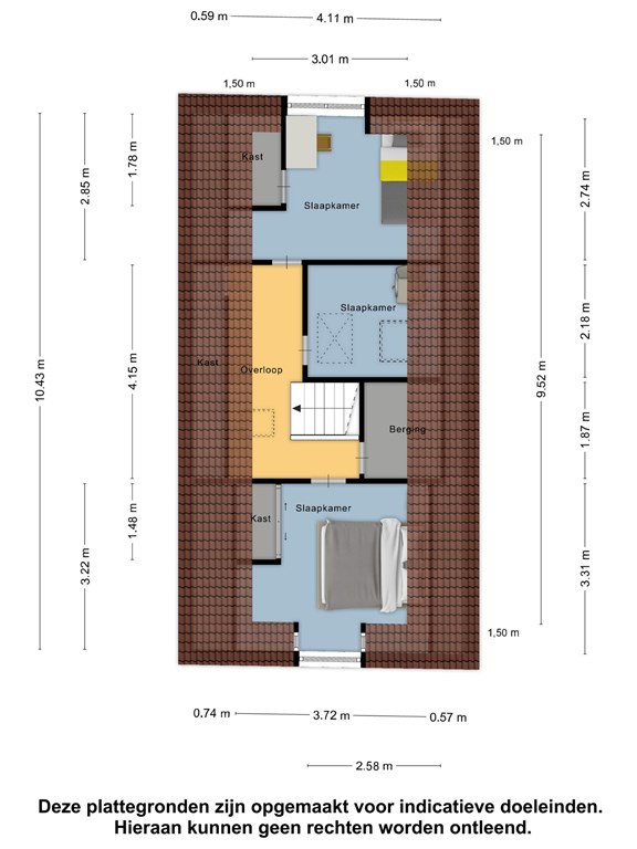
Op de verdieping kom je via de overloop met een bergkast in de voor- en achterkamer, beide met een dakkapel. Er is ook nog een zijkamer. Via een luik kom je op de bergzolder.
De woning is lang in dezelfde familie gebleven dus pak nu je kans en maak een afspraak voor het Start Open Huis op vrijdag 1 november. Tot dan!
Exoneratiebeding
De informatie is met grote zorgvuldigheid samengesteld. Desondanks aanvaardt de verkoper noch Hilbert Makelaardij enige aansprakelijkheid voor de onjuistheid van gegevens. De koper kan aan de inhoud van de vermelde informatie geen enkel recht ontlenen. Hij dient zelf onderzoek te plegen naar alle aspecten van de woning die voor hem van belang zijn.
Plattegronden
163567880_1523407_kromm_begane_grond_first_design_20241010_af6215.jpg
163567880_1523407_kromm_begane_grond_tu_first_design_20241010_0bc57b.jpg
163567880_1523407_kromm_eerste_verdiepi_first_design_20241010_9e51f3.jpg
163567880_1523407_kromm_zolder_first_design_20241010_05561f.jpg
163567880-264317393-se-115521854-1728558072135.png
163567880-264375419-se-115521854-1728558072135.png
163567880-264381218-se-115521854-1728558072135.png
163567880-264381413-se-115521854-1728558072135.png