Beschrijving
In de geliefde jaren dertig-woonwijk staat deze hele leuke, sfeervolle vrijstaande woning met een mansardekap. Aan de achterzijde vind je een garage met een oprit waar je op eigen terrein kunt parkeren. De achtertuin is ruim, mede door de zijtuin van 8 bij 4 meter. Dus je kunt de hele dag in de zon of in de schaduw zitten.
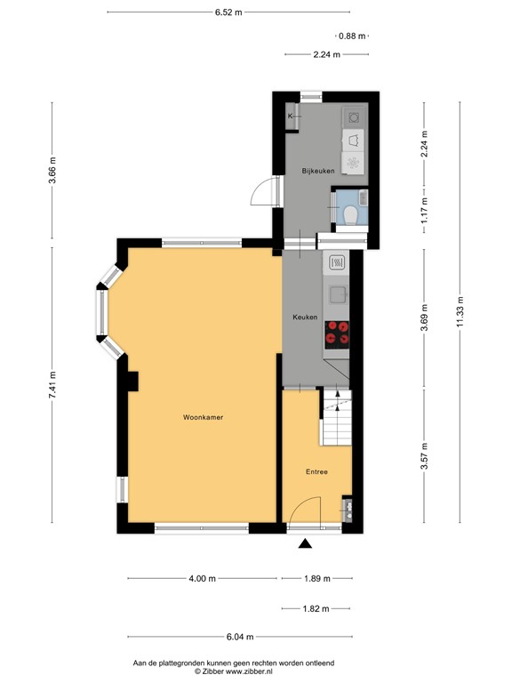
Via de hal kom je in de vernieuwde, moderne halfopen keuken met inbouwapparatuur. Doordat de muur is doorgebroken, heb je een ruimtelijk effect. De gezellige doorzonwoonkamer is lekker licht, mede door de erker aan de zijkant. De glas-in-loodramen horen helemaal bij de jaren 30-stijl. De aanbouw is van 2022, met de bijkeuken en een vernieuwd toilet.
Op de verdieping zijn in totaal drie slaapkamers met inbouwkasten. De gehele bovenverdieping is voorzien van kunststof kozijnen met dubbel glas. De badkamer met dakkapel heeft een douche, een wastafelmeubel en een tweede toilet.
Op de bergzolder kun je nog mooi wat spullen kwijt.
Bolsward is een Hanzestad met een gezellig stadscentrum, historische gebouwen, leuke winkeltjes en eetgelegenheden. Er zijn ook supermarkten, basisscholen, voortgezet onderwijs en kinderopvang. Al deze voorzieningen zijn op loopafstand aanwezig. Bovendien ligt Bolsward heel centraal, dichtbij andere grote steden. Je bent zo op de A7 en binnen een uur in Amsterdam, Groningen of Zwolle.
En ben je al verliefd geworden op deze hele leuke, gezellige en sfeervolle vrijstaande woning met garage en eigen parkeerplaats? Maak snel een afspraak voor het Start Open Huis op vrijdag 13 maart!
Exoneratiebeding
De informatie is met grote zorgvuldigheid samengesteld. Desondanks aanvaardt de verkoper noch Hilbert Makelaardij enige aansprakelijkheid voor de onjuistheid van gegevens. De koper kan aan de inhoud van de vermelde informatie geen enkel recht ontlenen. Hij dient zelf onderzoek te plegen naar alle aspecten van de woning die voor hem van belang zijn.
Plattegronden
182360419_1629449_bote_begane_grond_first_design_20260216_50e51d.jpg
182360419_1629449_bote_eerste_verdiepi_first_design_20260216_b529e0.jpg
182360419_1629449_bote_zolder_first_design_20260216_c8e019.jpg
182360419_1629449_bote_garage_first_design_20260216_c5e8eb.jpg